FAVORİ EKLE
125,000 £

Lefkoşa Marmara'da Satılık 2+1 Daire | Yatırım Ve Konfor

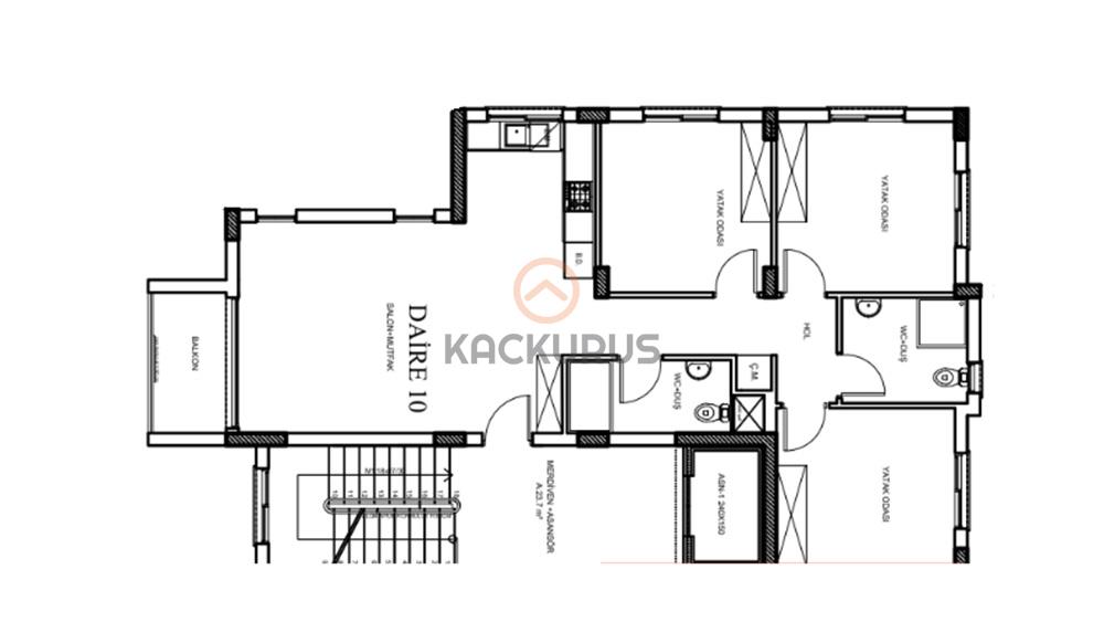
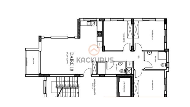
Satılık - Konut 113.00 m2 3+1 4.Kat
Kuzey Kıbrıs, Lefkoşa, Merkez, Merkez - Marmara
İlan No :#14-2070 - 1.06.2025

İLAN BİLGİLERİ

  • İlan No 14-2070
  • Son Güncelleme 01.06.2025
  • Listeleme Durumu Satılık
  • Konut Tür Daire
  • Brüt Alan 113.00 m2
  • Kapalı Alan 108.00 m2
  • Oda Sayısı 3+1
  • Banyo Sayısı 1
  • Bulunduğu Kat 4.Kat
  • Balkon Sayısı 1
  • Balkon Alanı 5.00 m2
  • Bina Kat Sayısı 4
  • Kredi Uygunluğu Hayır
  • Kullanım Durumu Boş
  • Isıtma Tipi Klima
  • Mobilya Durumu Eşyasız
  • Cephe Doğu-Batı
  • Teslim Yılı 2027 - Ocak
İLAN AÇIKLAMASI

Kuzey Kıbrıs Lefkoşa Marmara bölgesinde, şehrin kalbinde yer alan bu satılık 2+1 daire, hem yaşamak hem de yatırım yapmak isteyenler için eşsiz bir fırsat sunuyor.

DAİRE ÖZELLİKLERİ

  • Brüt Alan: 113 m2
  • Kat: 4. Kat
  • Oda Sayısı: 2+1
  • Balkon: 5 m2

Bu Lefkoşa Marmara satılık daire, hem modern yaşamın gereklerini karşılayan yapısıyla hem de konumu sayesinde ciddi bir yatırım potansiyeli sunmaktadır.

LEFKOŞA MARMARA BÖLGESİ AVANTAJLARI

Kuzey Kıbrıs’ın başkenti Lefkoşa’nın en değerli semtlerinden biri olan Marmara, sunduğu yaşam olanaklarıyla ön plana çıkmaktadır.

BÖLGENİN ÖNE ÇIKAN ÖZELLİKLERİ

  • Alışveriş merkezlerine, marketlere ve sosyal yaşam alanlarına yakın
  • Eğitim kurumları ve sağlık hizmetlerine kolay erişim
  • Devlet dairelerine, şehir merkezine ve ana yollara yakın konum
  • Sakin, yerleşim odaklı ama merkezi bir mahalle yapısı
  • Her geçen gün değerlenen gayrimenkul yatırım fırsatı

AİLELER İÇİN UYGUN, YATIRIM İÇİN MÜKEMMEL

Kıbrıs Lefkoşa Marmara, aile yaşamına uygun yapısı, güvenliği ve gelişmiş altyapısıyla yaşamak isteyenler için ideal bir bölgedir. Aynı zamanda Kuzey Kıbrıs yatırım fırsatları arayan yatırımcılar için değer kazanan bir lokasyondur.

GÜVENLİ VE HUZURLU BİR YAŞAM ALANI

Lefkoşa'nın en güvenli bölgelerinden biri olan Marmara, huzurlu atmosferi ve güven veren mahalle yapısıyla dikkat çekmektedir. Toplu taşıma, sosyal hizmetler ve ana yollara olan erişimiyle şehir içi ulaşım kolaylığı sağlar.

AVANTAJLI ÖDEME PLANI

  • %35 Peşinat
  • %65 Anahtar Teslimine Kadar Taksitli Ödeme

Lefkoşa Marmara'da konut yatırımı yaparak, hem konforlu bir yaşamın hem de kazançlı bir geleceğin kapılarını aralayın

KONUM ÖZELLİKLERİ

  • Cadde Üzerinde
  • Ön Cephe
  • Şehir Merkezinde
  • Üniversitelere Yakın
İÇ ÖZELLİKLER

  • Duşakabin
  • Seramik Zemin
  • PVC - Çift Cam
  • Klima Altyapısı
  • Fayans Mutfak
  • Melamin Kapaklı Mutfak Dolabı
  • Sunta Lam Mutfak Dolabı
  • Yatak Odası Laminant Dolap Kapısı
  • Yatak Odası Sunta Lam Dolap
  • Press İç Kapı
  • MDF Panel Press Giriş Kapısı
  • İç Duvarkar Astarlı Plastik Boya
  • PVC Plastik Boru Tesisat
  • Kompozit Gider Kapakları
HARİCİ ÖZELLİKLER

  • Asansör
  • Açık Otopark
  • Su Deposu
  • Alüminyum Merdiven Korkulukları
  • Çatı Su İzalasyonu
  • Dış Cephe Akrilik Silikonlu Boya
KULLANIM TÜRÜ

  • Ailelere Uygun
ÇEVRE

Taşıma

  • Ulaşıma yakın değil
Sağlık Kuruluşları

  • Burhan Nalbantoglu State Hospital 1,71 km
  • Nicosia Polyclinic 3,56 km
Eğitim Kurumları

  • European University Cyprus 4,6 km
  • NEU 3,50 km
  • University of Nicosia 4,96 km
Alışveriş

  • Alphamega Engomi 4,49 km
  • Athienitis Pallouriotissa 4,18 km
  • Lefkoşa Jumbo Superstore 2,22 km
  • Lidl 4,49 km
  • METROPOL 752 m
Yanlış İlanı Bildir
VİTRİN
İskele Long Beach'te 4 Mevsim Tatilin Yaşandığı Lüks Satılık Daireler
FAVORİ EKLE
KAMPANYA PROJE
kackurus.com
129,000 ~ 1,725,000 £
İskele Long Beach'te 4 Mevsim Tatilin Yaşandığı Lüks Satılık Daireler
Proje - Konut 416 Ev
Kuzey Kıbrıs, İskele, İskele, Merkez - Merkez
İlan No :#31-7173 - 6.05.2025
Kıbrıs İskele Karpaz Yeni Erenköy'de Doğanın İçinde Villa ve Geniş Teraslı Bahçeli Apartman Daireleri
FAVORİ EKLE
PROJE
VİDEO
kackurus.com
120,000 ~ 320,000 £
Kıbrıs İskele Karpaz Yeni Erenköy'de Doğanın İçinde Villa ve Geniş Teraslı Bahçeli Apartman Daireleri
Proje - Konut 27 Ev
Kuzey Kıbrıs, İskele, Yeni Erenköy, Merkez - Merkez
İlan No :#94-8872 - 29.04.2025
Kuzey Kıbrıs'ın Yükselen Yıldızı Boğaz'da Lüks Daire Ve Villalar
FAVORİ EKLE TÜRK KOÇANI
PROJE
VİDEO
kackurus.com
160,000 ~ 650,000 £
Kuzey Kıbrıs'ın Yükselen Yıldızı Boğaz'da Lüks Daire Ve Villalar
Proje - Konut 43 Ev
Kuzey Kıbrıs, İskele, Boğaz, Merkez - Merkez
İlan No :#53-5236 - 8.04.2025
Kuzey Kıbrıs Boğaz Sahil Köyünde Deniz Ve Dağ Manzaralı Satılık 3+1 Lüks Villa
FAVORİ EKLE TÜRK KOÇANI
VİDEO
kackurus.com
460,000 £
Kuzey Kıbrıs Boğaz Sahil Köyünde Deniz Ve Dağ Manzaralı Satılık 3+1 Lüks Villa
Satılık - Konut 320.00 m2 3+1 İnşaat Halinde 2026 - Ocak Teslim
Kuzey Kıbrıs, İskele, Boğaz, Merkez - Merkez
İlan No :#72-5512 - 24.04.2025